Ref. 86377728
475 m²
€790,000

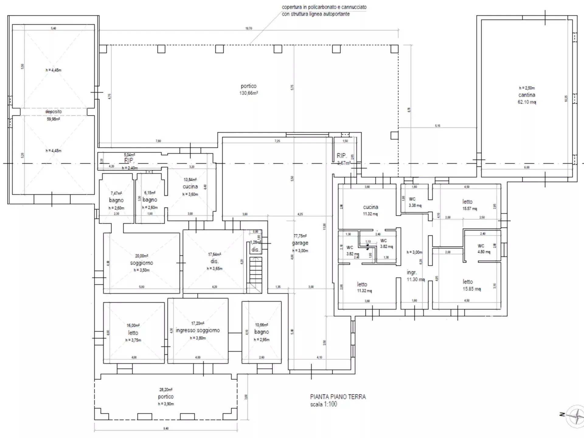
Discover this rare and prestigious property, combining the authentic charm of a 240 m² historic casale with the modernity of a 1980s villa of 100 m², all set on 15,600 m² of land adorned with centuries-old olive trees.
Just a few minutes from Carovigno and 6 km from the famous “White City” of Ostuni, this estate offers a perfect balance of history, tranquility, and proximity to amenities.
Main Features
Historic Casale (240 m²): built with local stone, star-shaped vaulted ceilings, 80 cm thick walls, and carefully preserved period cement floors.
1980s Villa (100 m²): 2 bedrooms, living room, kitchen, bathroom, and laundry room—ideal for hosting guests or family members.
Land (15,600 m²): fully enclosed by dry stone walls, electric gate, centuries-old olive trees, and fruit trees.
Extension Project: approved by the municipality, combining both buildings and creating a 55 m² private swimming pool.
Comfort and Security: state-of-the-art alarm system, air conditioning, and fireplace in the casale.
Interiors and Layout
Main Casale:
Large bright reception room
Open kitchen
Living room with fireplace
3 spacious bedrooms
Main bathroom with star-shaped vaults
Laundry room
Panoramic terrace with stunning views of olive groves and Carovigno’s historic center
Annexes:
74 m² storage room with large star-shaped vault, versatile space
Backyard with fruit trees
Development Potential
Total of 8 bedrooms planned
Private luxury residence
High-end B&B or vacation home
Turnkey project already approved by Carovigno municipality
Location and Access
No information available
No information available

No information available
This site is protected by reCAPTCHA and the Google Privacy Policy and Terms of Service apply.